hirsitalomalli

Vuono

Vapaa-ajan hirsitalomalli veden äärelle tai metsän syliin

Vuono on moderni hirsinen vapaa-ajan asunto, jossa minimalistinen arkkitehtuuri antaa luonnolle pääroolin. Rakennuksen muoto on selkeä ja paviljonkimainen: hirsirunko asettuu matalana maisemaan, ja sitä kiertävä katettu terassi sekä rimaseinät muodostavat ilmavan, puoliläpinäkyvän kehyksen – täydelliset puitteet ulkoelämään.

Sisääntulo on hienovaraisesti syvennetty katteen alle, mikä suojaa säältä ja johdattaa luontevasti kohti oleskelun ydintä. Korkeat lasipinnat ja harkittu kulmaikkuna kehystävät maiseman kuin taulun ja tuovat valon sisään koko päivän. Kompakti pohjaratkaisu kokoaa toiminnot selkeästi: makuualkovi tarjoaa rauhallisen pesän kahdelle, tupakeittiö ja ruokailutila sijoittuvat suurten ikkunoiden äärelle, joten maisema on läsnä aamiaisesta iltaan. Tulisijalle on varaus keskellä oleskelutilaa, ja pesutilat on helppo toteuttaa erillisenä saunarakennuksena. Aito hirsi hengittää, akustiikka on levollinen ja hirsirungon lämmönvarauskyky pitää olon miellyttävänä vuodenajasta riippumatta.

Vuono on suunniteltu sinulle, joka arvostat selkeää muotoa, aitoa kotimaista puuta ja helppohoitoista vapaa-ajan asumista.

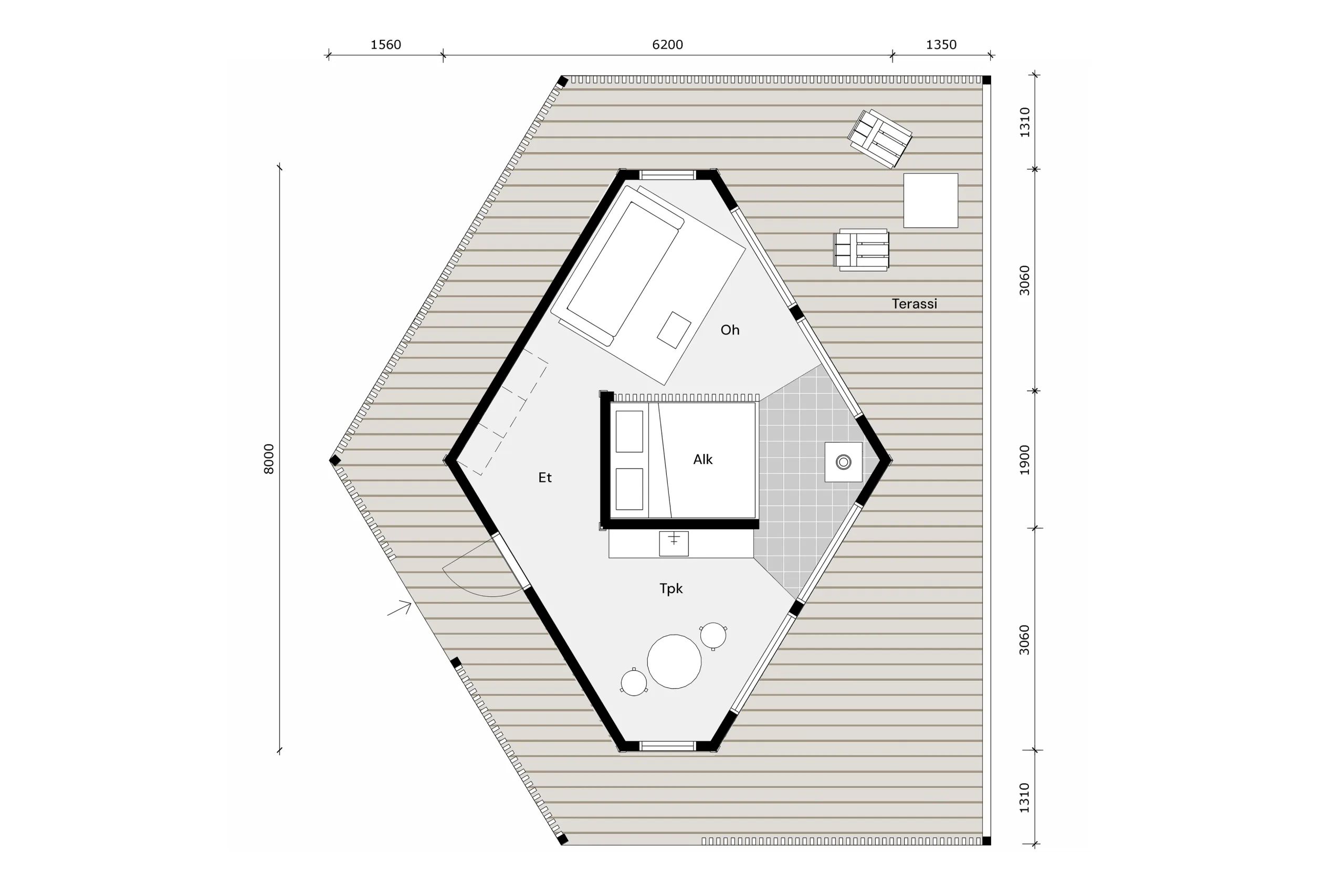
Pohjapiirros

Vuono

Huoneistoala 30 m² Kerrosala 27 m² Makuuhuoneita: 1 Kerroksia: 1

Talomallin kuvia

Kiinnostuitko?

Kattava palvelupakettimme sisältää pääkuvat, rakennesuunnitelmat, hirsikaaviot, kotimaisen hirsirungon ja muut tarvittavat materiaalit sopimuksemme mukaan.

Pyydä tarjous

Aloita matkasi unelmiesi kotiin.

Oletko jo kuvitellut, miltä tuntuisi astella sisään unelmiesi hirsikotiin? Kattava palvelupakettimme sisältää pääkuvat, rakennesuunnitelmat, hirsikaaviot, kotimaisen hirsirungon ja muut tarvittavat materiaalit sopimuksemme mukaan.

Wood loving life

Ekologista ja ajattoman kaunista asumista​

Hirsitalo on enemmän kuin koti – se on vastuullinen valinta, joka yhdistää kestävän kehityksen, terveellisen asumisen ja ajattoman kauneuden.

Rantasalmi Hirsitalot lähikuva Rauha talomallin terassille

Vastuullinen valinta

Hirsitalo tukee kestävää kehitystä ja on ympäristötietoisen rakentajan valinta.

Rantasalmi Hirsitalot lähikuva Rauha talomallin ruokailutilaan, jossa vaalea hirsiseinä

Puhdas sisäilma

Hirsitalo tarjoaa luonnollisesti puhtaan sisäilman ja terveellisen kodin, joka parantaa elämänlaatua.

Rantasalmi Hirsitalot lähikuva Luoto talomallin terassille

Muunneltavuus

Hirsi sopii yhtä lailla perinteisiin hirsitaloihin kuin moderneihin design-koteihin.

Hirsiopas

Kotimainen hirsi, sukupolvien suoja.

Hirsikodin suunnittelu alkaa oikean hirren valinnasta. Valitsemasi hirsi antaa rakennukselle myös sen persoonallisen ilmeen – juuri sellaisen, josta unelmoit. Oikea hirsi huomioi rakennuksen käyttötarkoituksen, ympärivuotisen tai kausittaisen käytön sekä energiamääräykset. Tutustu hirsioppaaseen ja autamme sinua valitsemaan juuri sinun projektiisi sopivan hirren.

Scroll to Top